Neue Offenlage für Bebauung Haagstraße
Aufgrund von Anregungen während der Offenlage des Bebauungsplans Haagstraße wurden nachträglich einige Änderungen im Plan vorgenommen. Daher ist eine erneute Offenlage erforderlich. Die Offenlage findet vom 29.11.2021 bis zum 13.12.2021 statt. In dieser Zeit können Anregungen oder Stellungnahmen bei der Stadt eingereicht werden. Ansprechpartner ist Herr Stephan Peters (02237/58429, stephan.peters@stadt-kerpen.de).
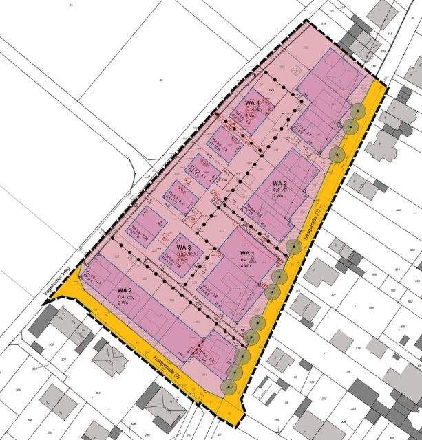
Wesentliche Änderungen sind die einheitliche Festlegung des Bezugspunktes für die Höhe der Gebäude, eine Reduzierung der Baufläche im rückwärtigen Bereich und die Festlegung der Anzahl der Wohnungen auf 1 in diesem Bereich.
In den Unterlagen heißt es: Folgende Inhalte wurden nach der öffentlichen Auslegung in den Planunterlagen angepasst:
- Festsetzung eines WA 4 auf dem Flurstück 341 sowie auf Teilen der Flurstücke
- 340 und 345 (vorher Bestandteil des WA 3)
- Änderung der Bezugshöhe für das WA 3 und WA 4
- Herabsetzung der GRZ innerhalb des WA 3 und WA 4 von 0,4 auf 0,35
- Verkleinerung, Aufteilung und Verschiebung der überbaubaren Flächen im WA 3
und WA 4
- Vergrößerung der überbaubaren Fläche auf dem Flurstück 410 im WA 1
- Zulässigkeit der Überschreitung der überbaubaren Flächen durch Terrassen und
- Terrassenüberdachungen bis 12 m2 je Wohneinheit
- Aufhebung der Beschränkungen bzgl. Dachform und -gestaltung für die Allgemeinen Wohngebiete WA 1 und WA 2
- Änderung des Maßes des Rücksprungs von Staffelgeschossen
- Änderung des Bezugspunktes sowie Anpassung der Trauf- und Firsthöhen für
- das Eckgrundstück auf dem Flurstück 331
- Festsetzung einer Dachbegrünung auf Flachdächern
- Beauftragung eines schalltechnischen Gutachtens zu den Lärmeinwirkungen
- des benachbarten Konservenherstellers
- Zusätzlicher Hinweis zum Artenschutz während der Baumaßnahmen

