Bürgerbeteiligung beim Bebauungsplan Haagstraße
Der Ausschuss für Stadtplanung und Verkehr hat am 02.03.2021 die Offenlage des Bebauungsplans BL297 „Haagstraße“ beschlossen.
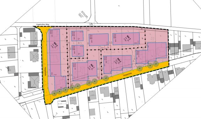
Zum Planungskonzept heißt es in der Begründung: „Das städtebauliche Konzept sieht vor, die Bestandsbebauung in dem ca. 1,5 ha großen Planbereich maßstäblich zu ergänzen und den Siedlungsbereich von Kerpen-Blatzheim zum Vogelruther Weg hin zu arrondieren. Hierzu sollen zwei Baulücken entlang der Haagstraße sowie die bisher mindergenutzten rückwertigen Bereiche entlang des Vogelruther Wegs baulich erschlossen und einer Wohnnutzung zugeführt werden. Insgesamt sind zusätzlich sechs freistehende Einfamilienhäuser sowie ein Mehrfamilienhaus mit bis zu vier Wohneinheiten und maximal zwei Vollgeschossen vorgesehen. Die vorgesehenen Hausformen fügen sich aufgrund ihrer Bauweise und ihrer Kubatur in den Bestand ein.“
Vom 29.03.21 bis zum 30.04.2021 läuft nun die offizielle Bürgerbeteiligung. Während dieser Zeit können Anregungen und Stellungnahmen zum Bebauungsplan vorgebracht werden. Ansprechpartner bei der Stadtverwaltung Kerpen ist Herr Stephan Peters (stephan.peters@stadt-kerpen.de, Tel. 02237/58429).
B-Plan-Haagstrasse Öffentliche Bekanntmachung


Hallo, im Bebauungsplan steht, dass die Haagstrasse nun zur „vollständig öffentlichen Verkehrsfläche“ deklariert wird. Bedeutet das, dass es keine Anliegerstrasse mehr sein wird? Danke
Diese Formulierung hat keine Änderung der Beschilderung zur Folge. „Offiziell“ ist die Straße bislang noch immer im Zustand eines Wirtschaftsweges, da der erstmalige Ausbau noch nicht erfolgt ist.